Eigentumswohnungen im Wohnpark Werner-Kofler Straße Bst. II, Villach
Neubau einer Eigentumswohnanlage mit 2 Häusern zu 11 bzw. 12 Wohneinheiten mit Tiefgarage, Lift und Fernwärmeanschluss nach neuesten energietechnischen Richtlinien in 9500 Villach, Obere Fellach.
Allen Wohnungen sind Balkone, Terrassen oder Grünbereiche zugeordnet.
3 verschiedene Grundrisstypen:
2-, 3-, oder 4-Zimmerwohnungen
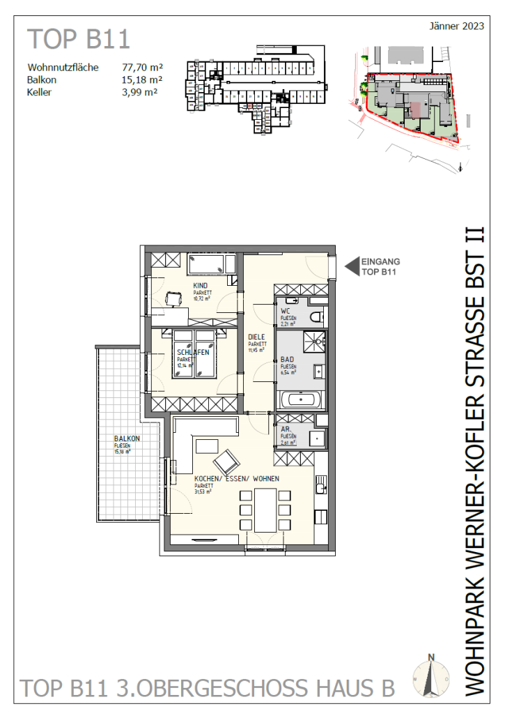
Noch 1 Wohnung verfügbar:
3-Zimmer-Dachgeschosswohnung TOP B11 78,02 m² + 15,18m² Balkon € 379.900,-
Eigentumswohnungen
Sie interessieren sich für eine unserer Eigentumswohnungen in Kärnten? Wir verfügen über eine Vielzahl von Eigentumswohnungen wahlweise mit Terrasse oder Balkon. Gerne beraten wir Sie rund um unser Angebot und die Finanzierung Ihrer eigenen Immobilie! Vereinbaren Sie einen kostenlosen und unverbindlichen Termin mit unseren Beratern und überzeugen Sie sich von den Vorteilen einer Eigentumswohnung von Willroider!
Lageplan
Sie sehen gerade einen Platzhalterinhalt von Google Maps. Um auf den eigentlichen Inhalt zuzugreifen, klicken Sie auf die Schaltfläche unten. Bitte beachten Sie, dass dabei Daten an Drittanbieter weitergegeben werden.
Mehr Informationen








